lokalizacja

biuro sprzedaży: ul. Malmeda 9 lok.1, 15-440 Białystok

Aktualne inwestycje

Mokra - Białystok

bg
bg

Mokra - Białystok

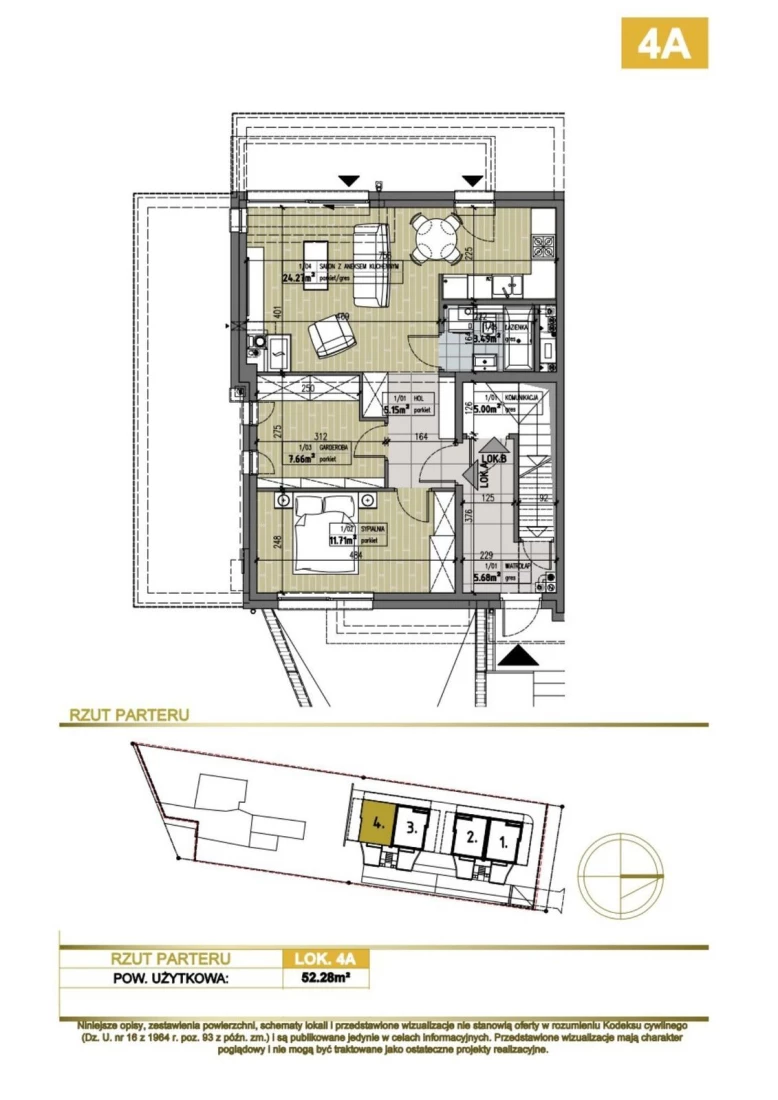
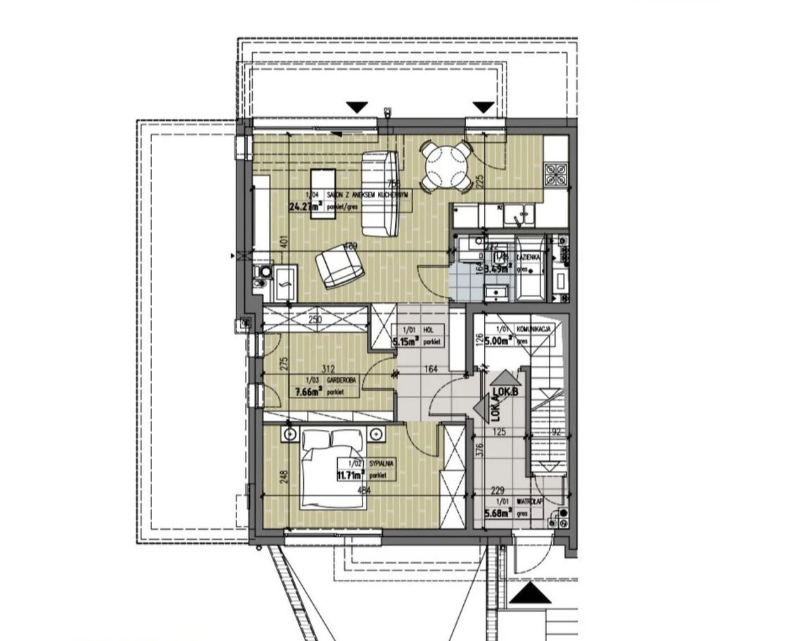
Mieszkanie 4A

Adres inwestycji
ul. Mokra,  Białystok

Cena za m2

9 200

zł brutto

Aktualna cena mieszkania

480 976

zł brutto

Piętro
Parter
Metraż
52.28 m2
Ilość pokoi
3
Status
Rezerwacja

Apartament 4A położony jest na PARTERZE

W przedmiotowym lokalu na powierzchni 52,28m2 znajdują się:

  • Pokój z aneksem: 24,27m2
  • Pokój: 11,71m2
  • Pokój: 7,66m2
  • Przedpokój: 5,15m2
  • Łazienka: 3,49m2

Ogródek o powierzchni 60m2

Adres biura sprzedaży:
Północ Nieruchomości Białystok
ul. Malmeda 9 lok 1
tel: 85 732 06 00

Wróć do zakładki inwestycji