lokalizacja

biuro sprzedaży: ul. Malmeda 9 lok.1, 15-440 Białystok

Aktualne inwestycje

Ogrodowa - Łomża

bg
bg

Ogrodowa - Łomża

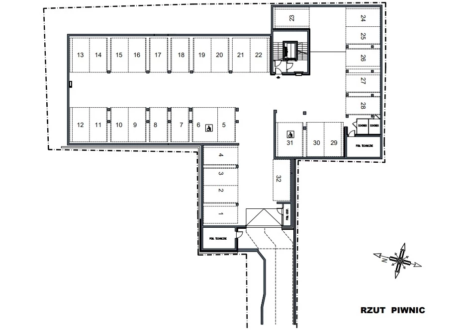
Miejsce postojowe MP21

Adres inwestycji
Ogrodowa 18-400 Łomża 

Aktualna cena miejsca postojowego

45 000

zł brutto

Piętro
-1
Status
Dostępne

Adres biura sprzedaży:
Północ Nieruchomości Łomża
ul. Krótka 2
tel: 86 216 400509 532 614515 028 625

Wróć do zakładki inwestycji