lokalizacja

biuro sprzedaży: ul. Malmeda 9 lok.1, 15-440 Białystok

Aktualne inwestycje

Mokra - Białystok

bg
bg

O inwestycji

Mokra - Białystok

Adres inwestycji
ul. Mokra,  Białystok

Opis inwestycji

Zapraszamy do zapoznania się z ofertą nowoczesnych apartamentów w kametalnych budynkach przy ul. Mokrej na osiedlu Skorupy w Białymstoku. Budynki w otoczeniu zabudowy jednorodzinnej z łatwym dostępem do centrum miasta.

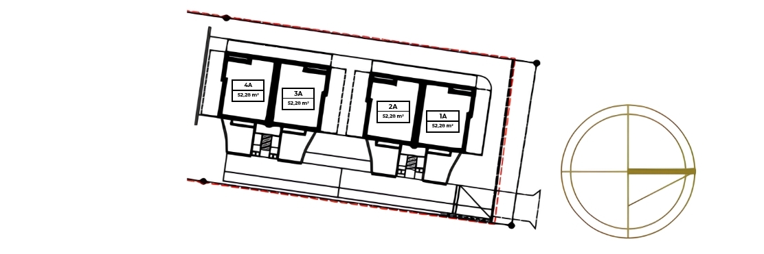
W ofercie posiadamy 4 budynki jednorodzinne, dwulokalowe, w zabudowie bliźniaczej. Do wyboru dostępne są zarówno funkcjonalne i kompaktowe mieszkania 3 pokojowe o powierzchni 52.28m2, jak i bardziej przestronne lokale 4-5 pokojowe o powierzchni 105,5 m2. Posiadamy mieszkania na parterze oraz I piętrze.

Każdy apartament posiada niezależny dostep do prądu, gazu, wody i kanalizacji sanitarnej oparty na indywidualnych licznikach.

Duża i komfortowa komórka lokatorska od 8m2 do 11m2 w cenie mieszkania! To naprawdę dużo miejsca na rowery, narty i inne rzeczy osobiste, które posiadasz!

Dwa miejsca postojowe w garażu podziemnym dedykowane dla każdego z mieszkań: wygoda i niezależność w parkowaniu Twojego auta.

Plik do pobrania

Prospekt informacyjny Mokra Białystok.pdf

Adres biura sprzedaży:
Północ Nieruchomości Białystok
ul. Malmeda 9 lok 1
tel: 85 732 06 00

Budynek Nr Piętro Metraż
(w m2)
Cena
(zł/m2)
Cena mieszkania
(zł brutto)
Status Uwagi
1 1A Parter 52.28 9 200 480 976 Rezerwacja więcej >
2 2A Parter 52.28 9 200 480 976 Rezerwacja więcej >
3 3A Parter 52.28 9 200 480 976 Rezerwacja więcej >
4 4A Parter 52.28 9 200 480 976 Rezerwacja więcej >